0
fr
Jean-Pascal PIVOT Négociateur
Vendu

Terrain

Vaulx-en-Velin (69120)
228 000 € Référence 179/11963E

A propos de ce bien

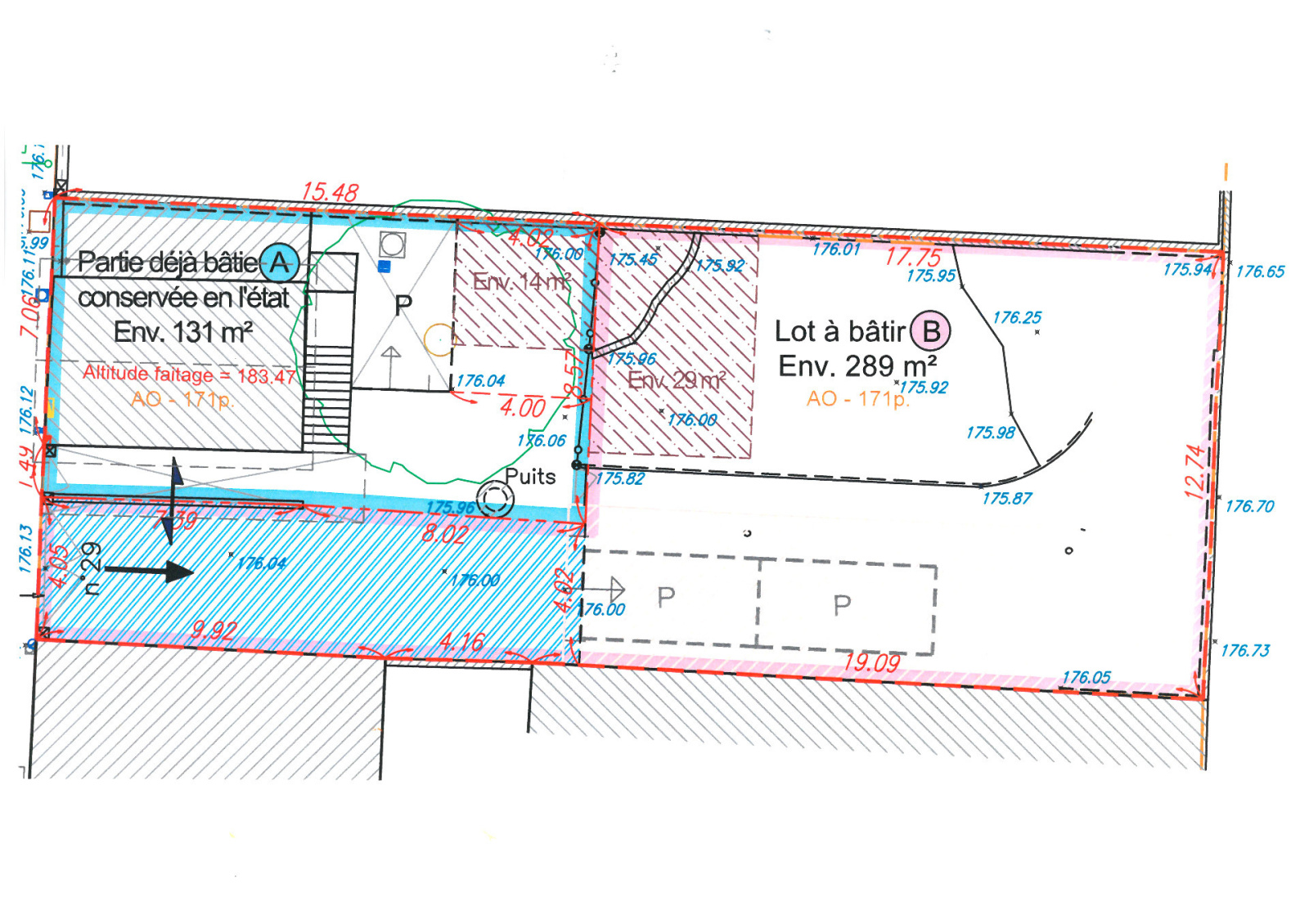
EXCLUSIVITÉ à LYON 8 ème: Tramway T6 et toutes commodités à pied. RARE dans ce secteur, terrain à bâtir en 2 ème ligne sur rue d'environ 290 m² avec voie d'accès. Cette parcelle plate permettrait la construction d'une villa d'environ 100 m² habitable. Libre choix constructeur. Prix: 228 000 € Honoraires à la charge du vendeur. Non soumis au DPE

Caractéristiques de ce bien

  • Surface 289 m²

Diagnostics énergétiques

DPE
GES
DPE ANCIENNE VERSION

Informations financières

Prix de vente honoraires TTC inclus 228 000 €

Autour du bien

  • Commerces et santé
  • Loisirs
  • Ecoles
  • Transports
  • Pratique

Calcul des mensualités

* Champs obligatoires